Rock Springs

Custom Homes

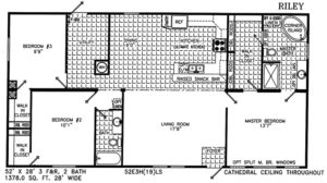
riley

Bookmark the permalink.

© 2020 Lakeshore Communities. All rights reserved.