Rock Springs

Custom Homes

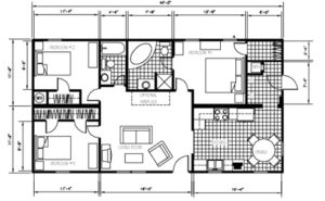
planD

Bookmark the permalink.

© 2020 Lakeshore Communities. All rights reserved.