Welcome To Rock Springs - To learn more about living here Contact Us Today
Rock Springs
®
A LAKESHORE COMMUNITY
Home
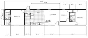
Homes Available
Amenities
Site Plan
Gallery
Contact
Resident Feedback
Home
Homes Available
Amenities
Site Plan
Gallery
Contact
Resident Feedback
Sales Information (321) 241-3832
Community Office (407) 886-6511
Community Office (407) 886-6511