Rock Springs

Custom Homes

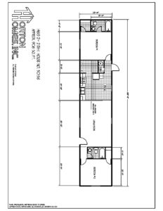
14×68-30156

14x68-30156
Bookmark the permalink.

© 2020 Lakeshore Communities. All rights reserved.